PHƯƠNG PHÁP ĐO HƯỚNG NHÀ
1. Trước tiên ta hãy tìm hiểu cấu tạo vật lý của la kinh.
La kinh được cấu tạo gồm 4 bộ phận chính là thân la kinh, mặt la kinh, đường định vị chữ thập, và kim nam châm.
Về chất liệu của các bộ phận và nội dung của la kinh tôi không nhắc đến vì không thuộc nội dung topic này.
Để kết quả đo được chính xác ta phải tiến hành lấy chỉ tiêu cho hướng nhà, mục đích là để định hướng cho la kinh và thiết lập hướng đặt la kinh sao cho xa tường để tránh ảnh hưởng của từ trường lên kim nam châm.
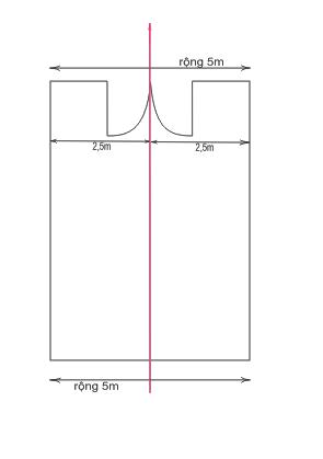
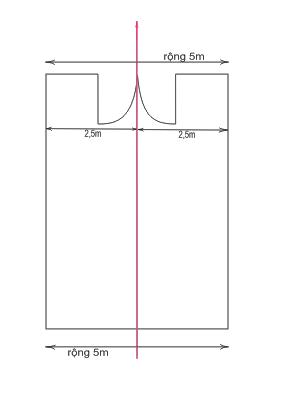
Cách xác định là lấy chiều ngang của căn nhà chia đôi.
Trong ví dụ này tôi cho chiều ngang của căn nhà là 5m . chia đôi thì được mỗi bên 2,5m, đánh dấu lại rồi dung 1 sợi chỉ dài, kéo thẳng từ trước ra sau ngôi nhà, nối liền 2 điểm đã đánh dấu trước đó.
Thẩm định giá bất động sản
Thẩm định giá động Sản
Thẩm định dự án đầu tư
Thẩm định giá tri doanh nghiệp
Thẩm Định Giá tài sản vô hình
Thẩm Định Giá mua sắm công
5. đo tâm nhà thì ta kẻ 2 đường chéo giao nhau giữa 4 góc nhà. Giao điểm của 2 đường chéo chính là tâm nhà, nơi đặt la kinh để xác định phương hướng bên trong căn nhà và hướng cửa chính.
Thông tin liên hệ:
CÔNG TY TNHH ĐỊNH GIÁ BẾN THÀNH - HÀ NỘI
📍 Trụ sở chính: Số 236 đường Cao Thắng, phường Hoà Hưng, thành phố Hồ Chí Minh.
📍 Văn phòng: 781/C2 Lê Hồng Phong,phường Hoà Hưng, thành phố Hồ Chí Minh.
📍 Mã số thuế: 0314521370.
🌐 Website: //thamdinh.com.vn
📞 Hotline: 0909.399.961
📧 Email: [email protected]






